
The Forte-Z
2,156 sq.ft.
4 Bedrooms |
2.5 Bathrooms
Features: The Forte-Z (zero lot line) floor plan includes 880 sq.ft. main floor, 1,276 sq.ft. upper floor with a tandem garage option, spice kitchen and mudroom options, and up to five bedroom upper floor options.
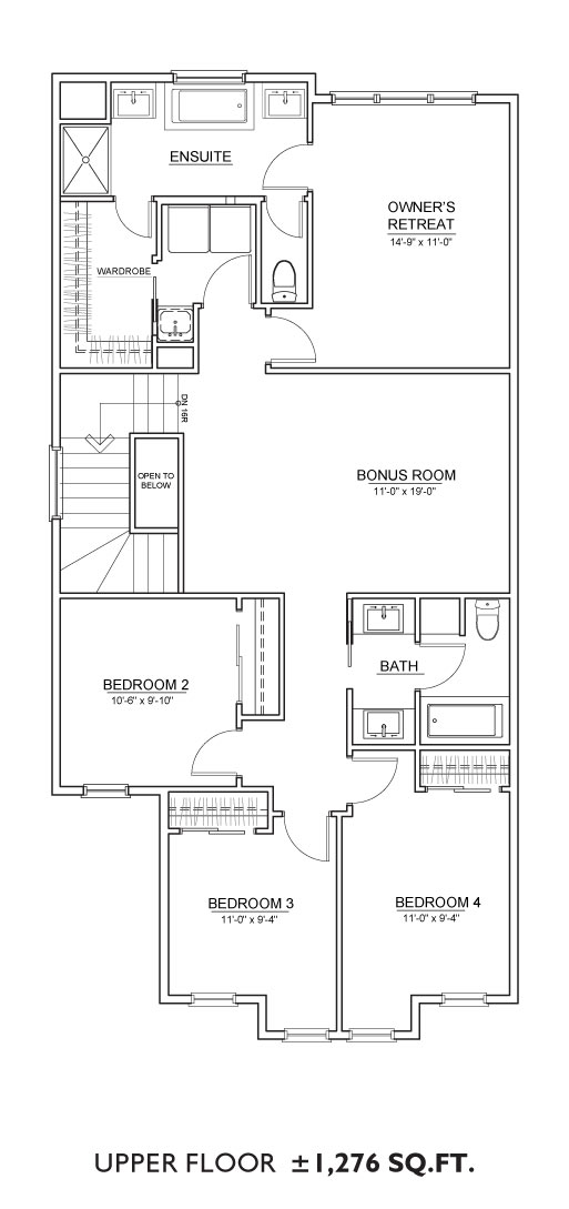
The Forte-Z
2,156 sq.ft.
4 Bedrooms
2.5 Bathrooms
Features: The Forte-Z (zero lot line) floor plan includes 880 sq.ft. main floor, 1,276 sq.ft. upper floor with a tandem garage option, spice kitchen and mudroom options, and up to five bedroom upper floor options.




