
The Briar
±2,222 sq.ft.
4 Bedrooms |
2.5 Bathrooms
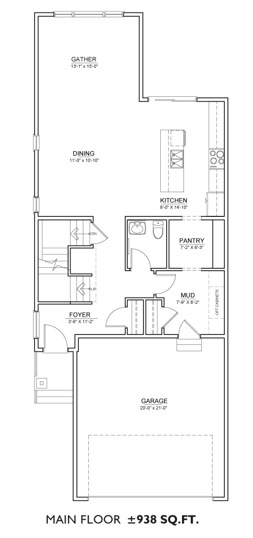
Features: The Briar floor plan includes 2222 square feet with various bedroom options and a bonus room. The main floor has layout options including a spice kitchen, pantry, mudroom, and additional bedrooms. All plans are fully customizable!
The Briar
±2,222 sq.ft.
4 Bedrooms
2.5 Bathrooms
Features: The Briar floor plan includes 2222 square feet with various bedroom options and a bonus room. The main floor has layout options including a spice kitchen, pantry, mudroom, and additional bedrooms. All plans are fully customizable!




