
The Finch
±1,615 sq.ft.
3 Bed |
2.5 Bath
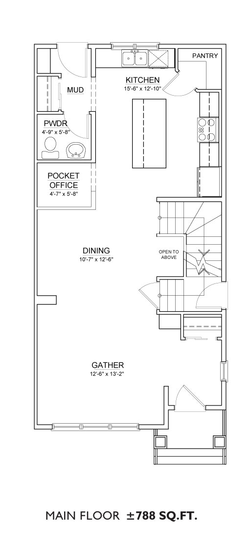
Features: The Finch includes a 788 sq.ft. open & airy main floor plan. The upper floor is 827 sq.ft. with 3 large bedrooms, 2 bathrooms and laundry room.
The Finch
±1,615 sq.ft.
3 Bed
2.5 Bath
Features: The Finch includes a 788 sq.ft. open & airy main floor plan. The upper floor is 827 sq.ft. with 3 large bedrooms, 2 bathrooms and laundry room.








