
The Olive III
±1,522 sq.ft.
3/4 Bed |
3 Bath
Features: The Olive III floor plan includes 768 sq.ft. of open main floor space and 754 sq.ft. on the upper floor. This plan features a 3-bedroom layout with a flex office/den on the main floor that could also be a 4th bedroom, upstairs laundry and 3 full bathrooms.
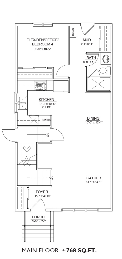
The Olive III
±1,522 sq.ft.
3/4 Bed
3 Bath
Features: The Olive III floor plan includes 768 sq.ft. of open main floor space and 754 sq.ft. on the upper floor. This plan features a 3-bedroom layout with a flex office/den on the main floor that could also be a 4th bedroom, upstairs laundry and 3 full bathrooms.




