
The Artisan
±2,119 – 2,376 sq.ft.
4 Bedroom |
2.5 Bathrooms
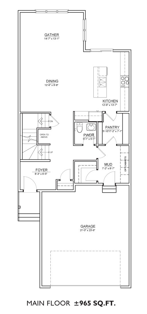
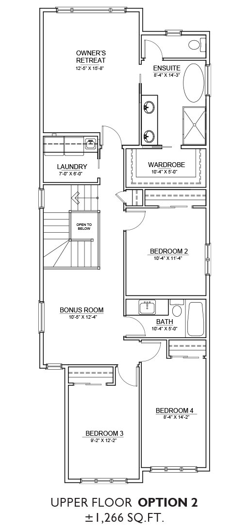
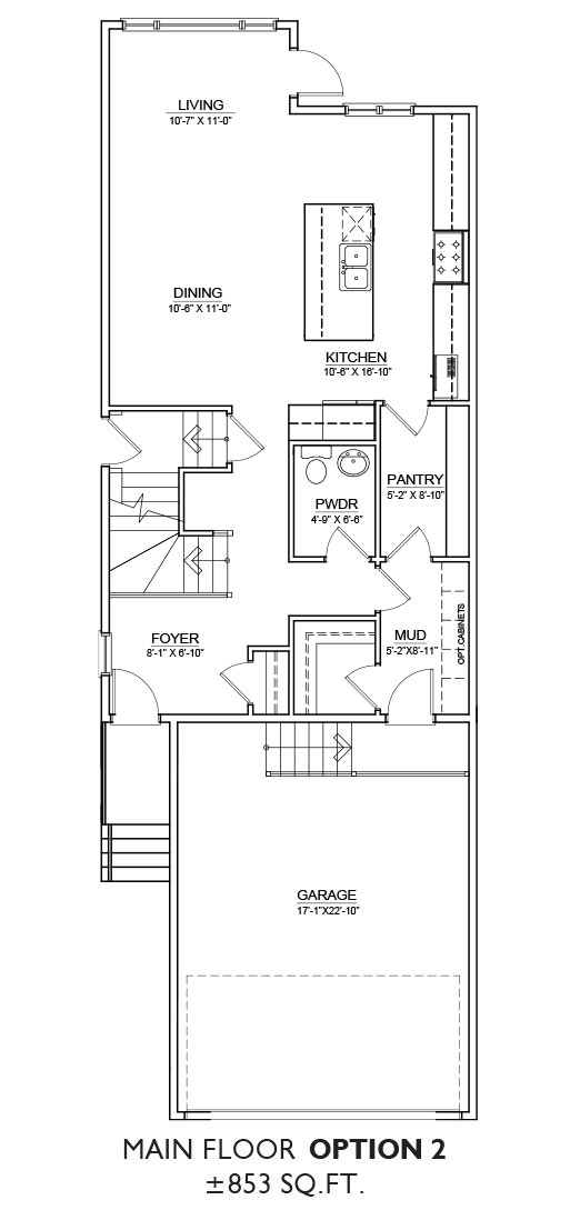
Features: The Artisan floor plan includes 965 sq.ft. main floor, 1411 sq.ft. upper floor with four bedrooms and a den space. The main floor has various layout options including a spice kitchen, pantry or additional bedroom options. All plans are fully customizable!
The Artisan
±2,119 – 2,376 sq.ft.
4 Bedroom
2.5 Bathrooms
Features: The Artisan floor plan includes 965 sq.ft. main floor, 1411 sq.ft. upper floor with four bedrooms and a den space. The main floor has various layout options including a spice kitchen, pantry or additional bedroom options. All plans are fully customizable!






