
The Alpine
1,883 sq.ft.
3 Bedrooms |
2.5 Bathrooms
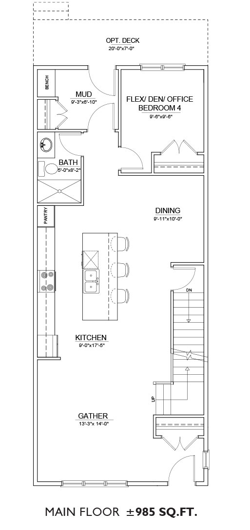
Features: The Alpine floor plan includes a 985 sq.ft. main floor and 918 sq.ft. upper floor with 3 bedrooms and 2.5 bathrooms. The main floor features a galley kitchen as well as the option of a den or guest bedroom on the main floor. The upper floor features a 3-bedroom layout with upstairs laundry and 2 full bathrooms.
The Alpine
1,883 sq.ft.
3 Bedrooms
2.5 Bathrooms
Features: The Alpine floor plan includes a 985 sq.ft. main floor and 918 sq.ft. upper floor with 3 bedrooms and 2.5 bathrooms. The main floor features a galley kitchen as well as the option of a den or guest bedroom on the main floor. The upper floor features a 3-bedroom layout with upstairs laundry and 2 full bathrooms.




